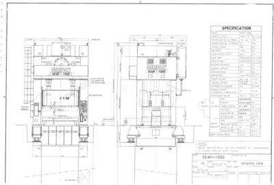
1500T SIMPAC

Have one to sell?
ConditionUsed
1 available